$699,000
3 Beds
  2 Full / 1 Half
Property Info
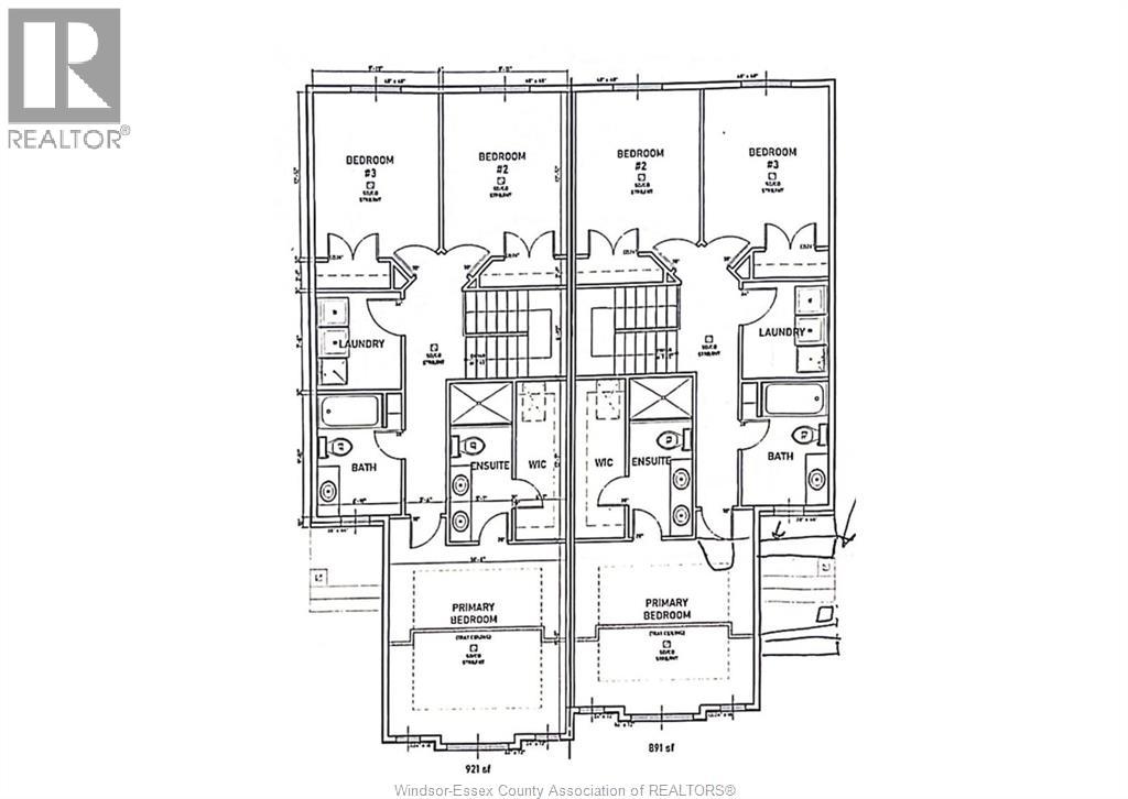
Welcome to this beautiful semi-detached 2-story home, thoughtfully designed with comfort and convenience in mind. The main floor features a spacious layout with a bright living room, a dining area perfect for family meals, and a modern kitchen complete with a large island, walk-in pantry, and plenty of cabinet space. A 2-piece powder room adds extra functionality to the main level. Upstairs, you’ll find three generously sized bedrooms. The primary suite offers a walk-in closet and a private ensuite with double sinks, while the second-floor laundry room is conveniently located near all the bedrooms. The basement provides endless potential with its unfinished space, ready to be customized to suit your needs. Call today for more details and to book a tour of our model home! (id:4555)
Property Specs
Listing ID25023691
AddressLOT 1 EAGLE
CityLeamington, ON
Price$699,000
Bed / Bath3 / 2 Full, 1 Half
ConstructionAluminum/Vinyl, Brick
FlooringCeramic/Porcelain, Laminate
Land Size27.89 X 97.70 FT
TypeHouse
StatusFor sale
Extended Features
Features Front DrivewayOwnership FreeholdCooling Central air conditioningFoundation ConcreteHeating Forced air, FurnaceHeating Fuel Natural gas Date Listed 2025-09-17 16:02:14Days on Market 151
Request More Information

Have a Question?


LISTING OFFICE:
Deerbrook Realty Inc. Brokerage, Robbie Turner
Connect With Us
Loading...